32+ Shear Force Diagrams
Solved Sketch The General Shape Of Shear Force And Bending Chegg Com

Understanding Shear Force And Bending Moment Diagrams The Efficient Engineer
Shear Force Diagram An Overview Sciencedirect Topics
Shear Force And Bending Moment Diagram Of The Prototype Wall Subjected Download Scientific Diagram
Hydrodynamic Load And Resulting Shear Force And Bending Moment Diagrams Download Scientific Diagram
Bending Moment And Shearing Force Diagrams Download Scientific Diagram
Bending Moment And Shear Force Diagrams Of Beams With Different Support Conditions And Different Loading Calculo De Vigas Analisis Estructural Apuntes De Clase
Solved 4 5 32 The Shear Force Diagram For A Simple Beam Is Chegg Com
6 2 Shear Moment Diagrams Engineering Mechanics Statics
Shear Force And Bending Moment Diagrams Wikiversity
Theory C4 1 Shear Force And Bending Moment Diagrams Solid Mechanics I
6 2 Shear Moment Diagrams Engineering Mechanics Statics
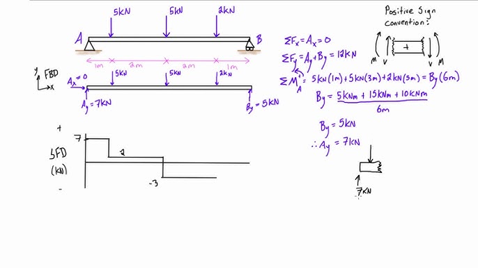
Shear Force And Bending Moment Diagrams Example 1 Single Point Load Youtube
The Ultimate Guide To Shear And Moment Diagrams Degreetutors Com
Understanding Shear Force And Bending Moment Diagrams Youtube
Brief Information About Shear Force And Bending Moment Diagrams Engineering Discoveries Bending Moment Shear Force Structural Engineering
Shear Force And Bending Moment Diagram Practice Problem 3 Youtube
Free Body Diagram For The Transverse Shear Forces And Bending Moments Download Scientific Diagram